For reservations or to schedule a tour, please email rentals@roundabouttheatre.org.
Roundabout's rehearsal spaces are fully equipped to meet the needs of your production, large or small.
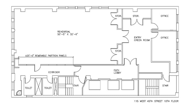
Floor plan for the 10th floor, featuring a 50' x 32' rehearsal space.
Floor plan for the 11th floor, featuring a 34' x 50' rehearsal space.
Floor plan for the 12th floor, featuring a 34' x 50' rehearsal space.
Locations:
115 West 45th St., 10th Floor*
115 West 45th St., 11th Floor
115 West 45th St., 12th Floor
*Note: 10th Floor Studio cannot accommodate musical rehearsals.
Hours:
Monday–Sunday, 8:00am to midnight
Amenities Include:
- Offices with copier and wireless internet
- Air conditioning
- Separate green rooms with coffee machine, refrigerator, water cooler
- Private restrooms
- Piano
- Chairs available for readings and presentations
- Separate vocal room/fitting room